BULL STREET
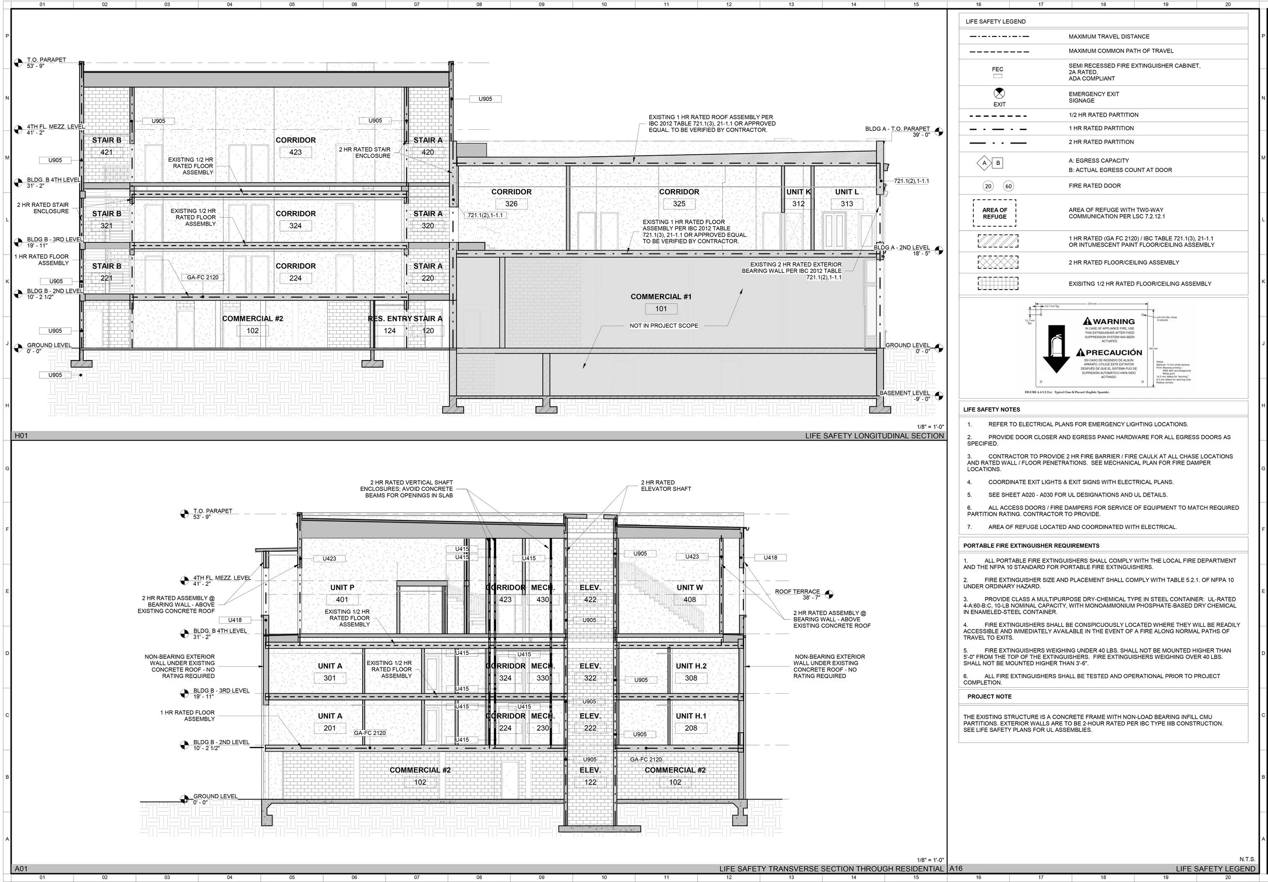
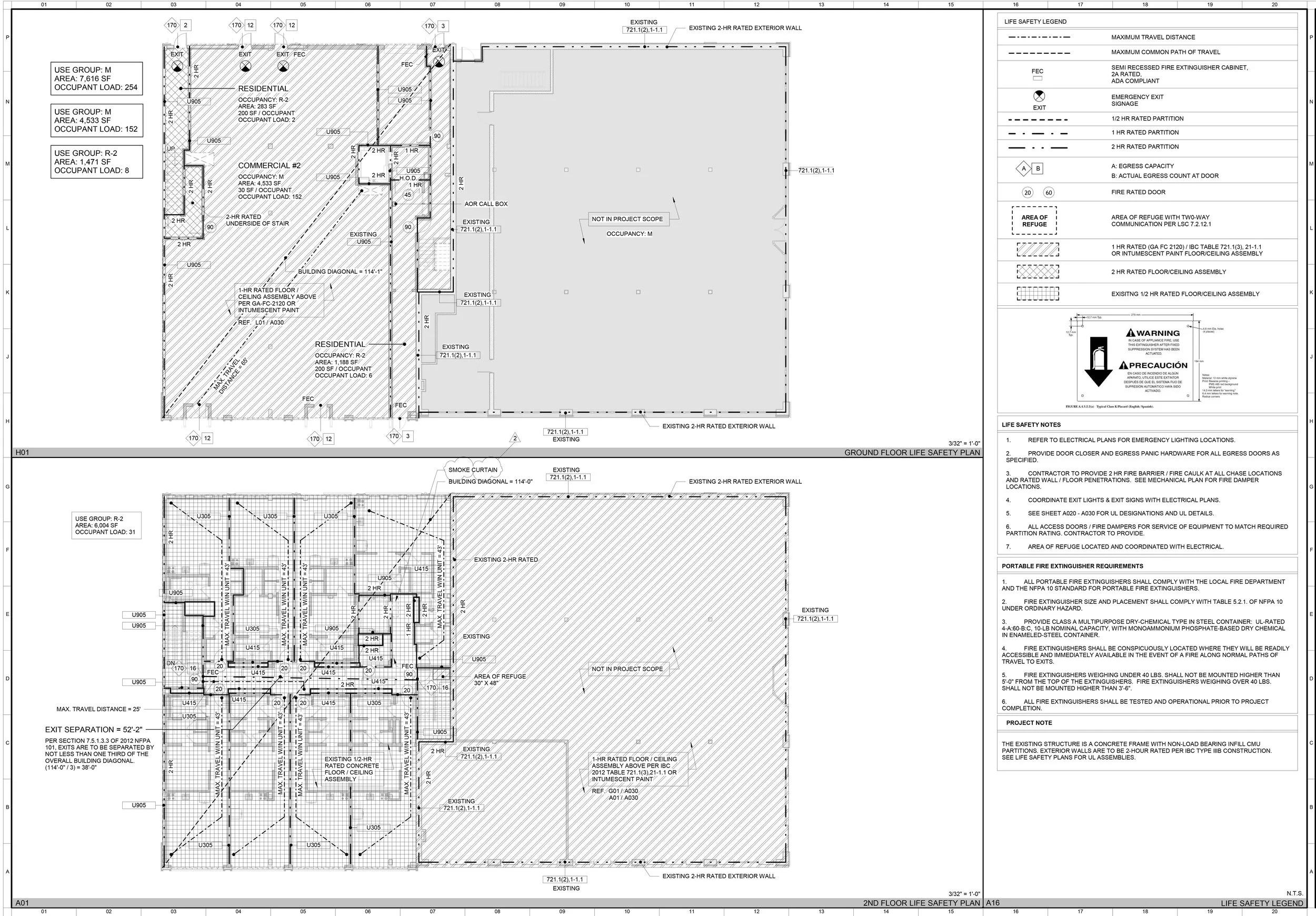
THIS PROJECT CONSISTS OF THE VERTICAL EXTENSION AND CONVERSION OF TWO ADJACENT EXISTING STRUCTURES TO MIX-USE RESIDENTIAL BUILDINGS. THE CORNER PROPERTY IS A TWO-STORY WOOD FRAME STRUCTURE AND THE SCOPE OF WORK ON THIS BUILDING INCLUDES THE CONVERSION OF THE SECOND FLOOR FROM OFFICE USE TO APARTMENT UNITS. THE ADJACENT BUILDING IS A THREE-STORY CONCRETE STRUCTURE AND THE SCOPE OF WORK INCLUDED CONVERTING THE EXISTING UPPER FLOORS FROM STORAGE SPACES TO APARTMENT UNITS, ADDING A FOURTH-STORY WITH A MEZZANINE, AND CONVERTING THE EXISTING SINGLE COMMERCIAL SPACE ON THE FIRST FLOOR TO TWO SEPARATE COMMERCIAL TENANT SPACES.
