WYTHE AVENUE
MIX-USE NEW BUILDING
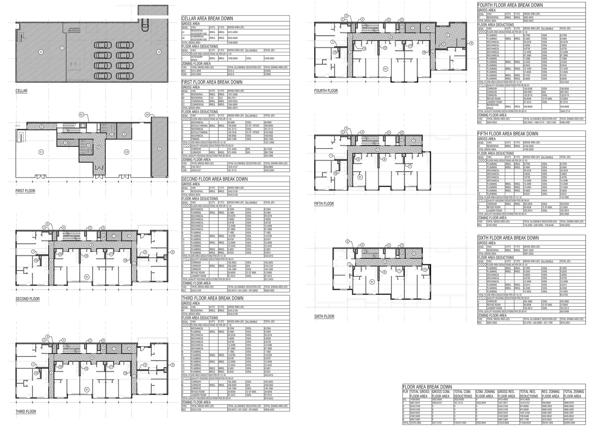
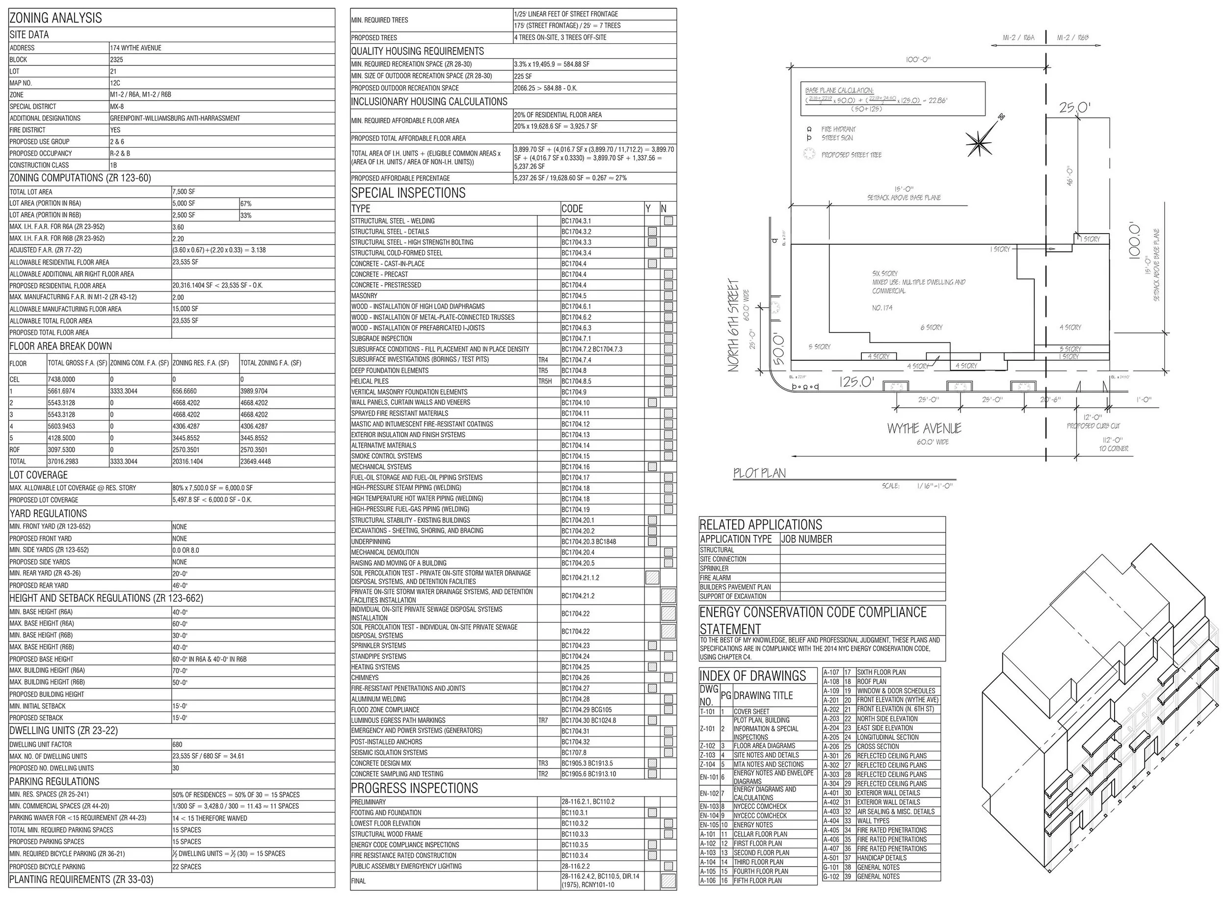
THE 6-STORY NEW BUILDING WAS DESIGNED FOR A COMMERCIAL SPACE ON THE FIRST FLOOR, PARKING IN THE CELLAR AND APARTMENTS ON THE CONSECUTIVE UPPER FLOORS. THE PROJECT WAS ALSO PART OF THE QUALITY HOUSING PROGRAM AS WELL AS THE INCLUSIONARY HOUSING PROGRAM.
