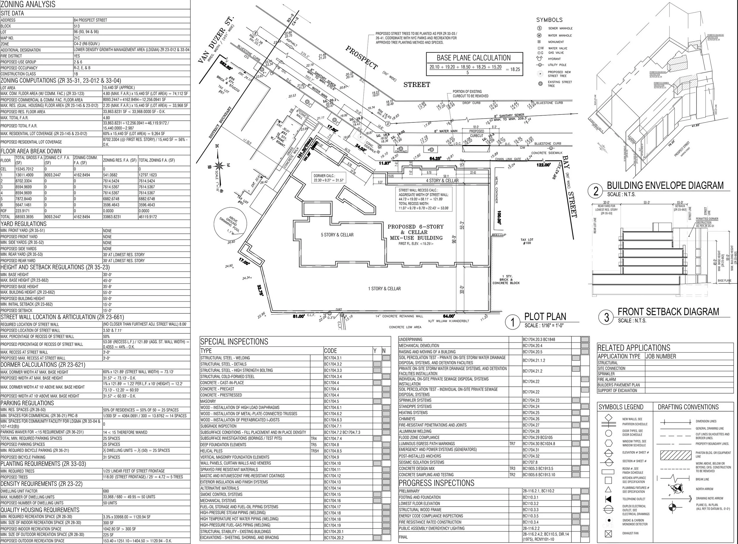
PROSPECT STREET
6-STORY MIX-USE NEW BUILDING
THIS NEW BUILDING WAS DESIGNED TO ACCOMMODATE ONE DAYCARE FACILITY AS WELL AS AN OFFICE SPACE ON THE FIRST FLOOR WITH PARKING LOCATED IN THE CELLAR. THE UPPER FLOORS WERE DESIGNED FOR APARTMENTS UNDER THE QUALITY HOUSING PROGRAM.
